Lyman Residence:
Live / Work Attic Renovation

“In identifying a single medium through which to work, the architect is able to force invention from within a genre, and in doing so, to radicalize its ability to transform, evolve, and innovate.

— Nader Tehrani


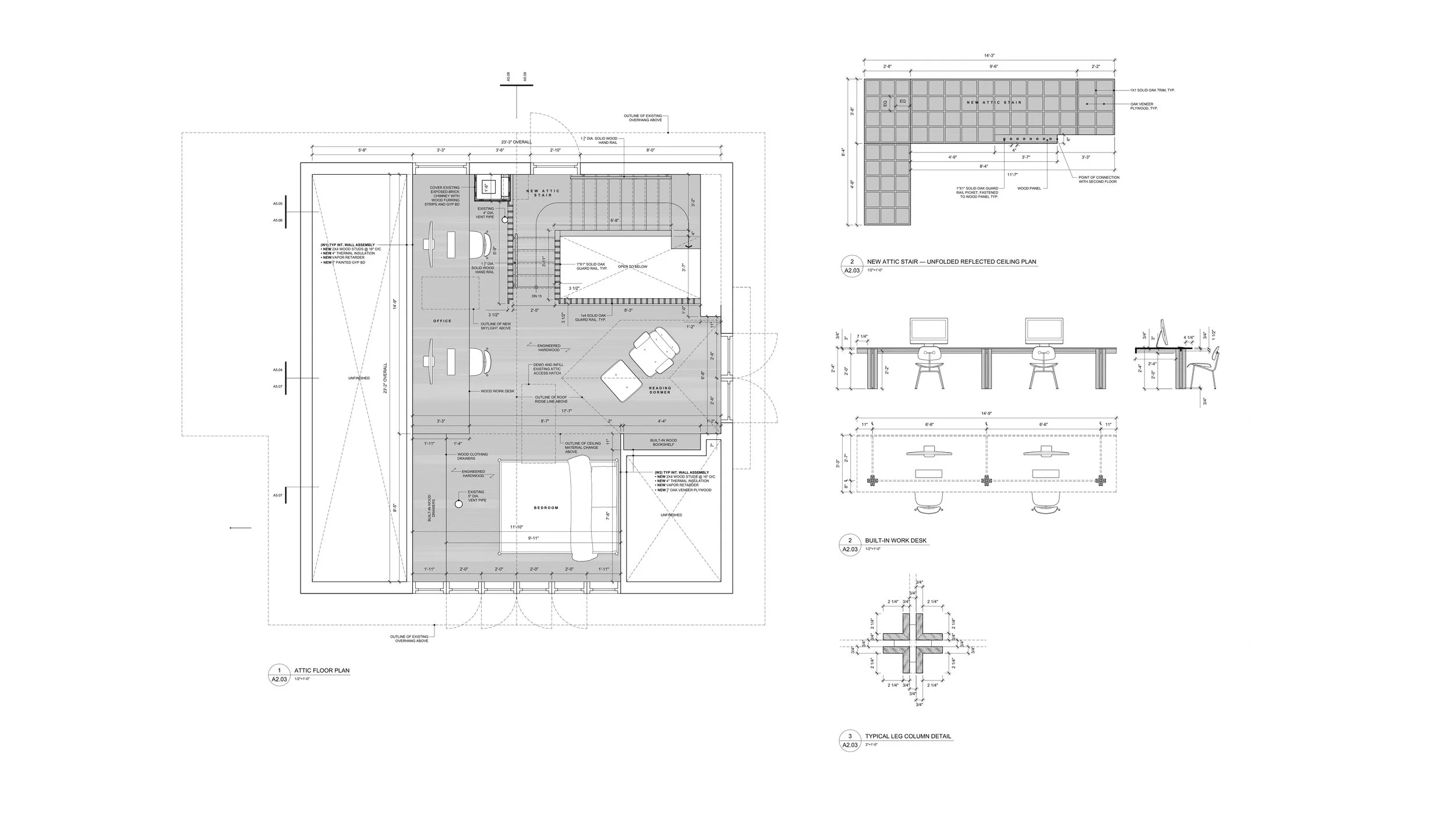
As a mono-medium investigation into expanded habitable space within the tight constraints of a classic American Foursquare, this project draws inspiration from the Prairie and Craftsman wood detailing characteristic of Oak Park, IL.

Operating between the scale of furniture and building, this surgical intervention into an existing century-old home explore the textures and craftsmanship of contemporary millwork to create a warm living suite for a growing family.

Location
Oak Park, IL

Status
Design Development

Date
2022 —

Type
Residential

Size
700 sf

Previous
Previous

Field House Harvest

Next
Next

Lyman Residence — Third Floor Addition